โดย..อ.บรรจบ พลับจุ้ย
ม้วนเหล็ก ( COIL ) จะถูกดึงผ่านลูกล้อตัดแบ่ง (Slitting )ตามแนวยาวของม้วนเหล็ก ตามรูปที่1 ซึ่งสามารถตั้งระยะห่างระหว่างลูกล้อได้ โดยตัดได้ไม่เกิน 5 แถบความกว้าง เมื่อม้วนเหล็กถูกตัดแบ่งก็จะไหลออกมาทางด้านหลัง ตามรูปที่ 2 แล้วถูกตัดด้วยใบมีด (Shearing) ตลอดความกว้างของหน้าม้วนเหล็ก จากนั้นจึงนำแผ่นเหล็กที่ได้ไปตัดแบ่งเพื่อให้ได้ขนาดที่ต้องการต่อไป ลักษณะของการทำงานแบบเดิม
แล้วพนักงานต้องจัดวาง เพื่อให้เหลือพื้นที่เศษ (ส่วนที่แรเงา) น้อยที่สุด ดังภาพ เห็นได้ว่าการจัดเรียงจากชิ้นงาน 15 รูปแบบแม้นำมาจัดเรียงเพียง 2 รูปแบบก็สามารถจัดเรียงได้หลายวิธีในการตัดตลอดแนวความกว้างม้วนเหล็ก ปัญหาของโรงงาน / พนักงาน 2. ไม่สามารถมั่นใจว่า วิธีที่วางแผนตัดนั้น เป็นวิธีที่ประหยัดที่สุด ลักษณะของโปรแกรมวางแผนตัดโลหะแผ่น (TGI SHEET METAL LAYOUT FOR AUTO SHEAR MACHINE) - วัน เวลา ที่ประมวลผล ข้อมูลทั้งหมดที่กรอกลงไป 5.โปรแกรมไม่คำนวณจำนวนแผ่นของชิ้นงานที่ทำการตัด โดยผู้ใช้ต้องบันทึกเองว่า ในการตัดแต่ละครั้งได้ชิ้นงานขนาดใดบ้างและเป็นจำนวนเท่าใด ต้องตัดกี่ครั้งจึงจะได้ครบตามจำนวนที่ต้องการ ลักษณะของโปรแกรมในอนาคต - ยังคงแสดงผลตามที่กล่าวมาข้างต้น ข้อด้อยของโปรแกรมวางแผนตัดโลหะแผ่น - ไม่คำนวณ จำนวนแผ่นที่ต้องการตัด การนำไปใช้งาน - สำหรับโรงงานที่ต้องตัดโลหะแผ่นจำนวนมากๆ และมีรูปแบบของชิ้นงานหลากหลาย เช่น โรงงานผลิตเครื่องปรับอากาศ โรงงานผลิตตู้เก็บเอกสาร, ตู้เก็บของ โรงงานอื่นๆ ที่เกี่ยวข้องกับการตัดโลหะแผ่น การประยุกต์ใช้งาน - โรงงานที่มีการตัดโลหะแผ่นจำนวนมากๆ และมีรูปแบบของชิ้นงานหลากหลาย
การทำงานของเครื่องตัดอัตโนมัติ

รูปที่1

รูปที่ 2
เมื่อพนักงานได้รับคำสั่งตัดจากแผนกวางแผนแล้วจึงนำมาวางแผนการตัดโลหะ เช่น ได้รับคำสั่งให้ตัดเหล็กแผ่น ขนาด
486*1020 = 2000 แผ่น
726*815 = 2000 แผ่น
244*368= 2000 แผ่น
587*1125=1000 แผ่น
867*867=1000 แผ่น
683*690=1100 แผ่น
317.5*885=3000 แผ่น
320*886=3000 แผ่น
525*690=2000 แผ่น
351*690=1000 แผ่น
874.5*683=900 แผ่น
525*869.3=1000 แผ่น
891.5*1148=1000 แผ่น
407*1529=1200 แผ่น
176*1477=1200 แผ่น

.


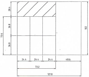
ตัวอย่างในรูปสุดท้ายไดิ้นงานในการตัดตลอดแนวความกว้างแต่ละครั้งดังนี้
244*368 จำนวน 9 ชิ้น
486*1020 จำนวน 1 ชิ้น
คังนั้นจึงต้องตัดทั้งหมด 233 ครั้ง จึงจะได้ชิ้นงาน ขนาด 244*368 ครบ 2,007 แผ่น ส่วนอีก 1 ขนาด จะได้ชิ้นงานไม่ครบ และต้องนำไปรวมกับชิ้นงานชิ้นอื่นๆ ที่ยังไม่ได้ตัด เพื่อวางแผนให้ประหยัดต่อไป
1. เป็นเรื่องยากที่จะนำชิ้นงานทั้ง 15 ชิ้น (30 ด้าน) มาจัดเรียงทั้งความกว้างและความยาวของชิ้นงานให้สัมพันธ์กับความกว้างของหน้าม้วนเหล็กและความยาวในการตัดแต่ครั้งได้
3. พนักงานเสียเวลาในการวางแผนมาก โดยต้องคำนวณใหม่ทุกครั้งที่ตัดแผ่นโลหะชิ้นใดชิ้นหนึ่งครบจำนวน
สามารถคำนวณหาวิธีการจัดเรียงแผ่นเหล็กรูปสี่เหลี่ยมมุมฉากขนาดต่างๆ ลงบนพื้นที่ที่กำหนด ให้เหลือเศษน้อยที่สุด โดยมีขีดความสามารถดังนี้
1. สามารถหาวิธีการจัดเรียงที่ดีที่สุดได้ โดยการคำนวณจากแผ่นเหล็กที่ต้องการตัด ที่มีขนาดแตกต่างกันได้ถึง 15 ขนาด (30 ด้าน) หรือมากกว่านี้ แต่จะทำให้โปรแกรมประมวลผลช้าลง
2.ผู้ใช้สามารถกำหนดความกว้างและความยาวสูงสุดของม้วนเหล็กที่นำมาตัดเป็นแผ่นเหล็กขนาดต่างๆได้
3.ในการจัดเรียง จะเรียงเป็นแถวตามแนวยาวของม้วนเหล็ก ซึ่งเรียงสูงสุดได้ไม่เกิน 5 แถว (หรือมากกว่านี้ แต่จะทำให้โปรแกรมประมวลผลช้าลง) ซึ่งในแต่ละแถวเป็นเหล็กแผ่นที่มีขนาดเดียวกัน
4.โปรแกรมแสดงผลการจัดเรียงแต่ละครั้ง ดังนี้
- จำนวนแถวที่จัดเรียงและขนาดของด้าน ในแต่ละแถว
- จำนวนแผ่นที่นำมาเรียงต่อกันในแนวยาว
- ค่าประสิทธิภาพสูงสุดในการจัดเรียง
- ข้อมูลที่ถูกใช้ไปในการประมวลผล
ตัวอย่างการแสดงผล
- โปรแกรมจะทำงานใน Graphic Mode ไม่ใช่ทำงานใน Text Mode (MS Dos Prompt) อย่างปัจจุบัน
- มี Dialog box เหมือนใน Window
- สามารถเขียนรูปแบบการ Layout บน CAD ได้ ซึ่งจะทำให้ผู้ใช้มองเห็นแนวเส้นในการตัดอย่างชัดเจน
- โรงงานต้องมี Lead Time ในการตัดโลหะแผ่นมากขึ้น เพื่อให้มีชิ้นงานหลากหลายแล้วโปรแกรมจะวางแผนได้ประหยัดที่สุด
- ประสิทธิภาพในการตัดจะลดลง เมื่อมีความหลากหลายของขนาดชิ้นงานมาก (ตัวเลือกน้อย) ก็เลือกชิ้นงานได้ไม่มาก
- ชิ้นงานเป็นรูปสี่เหลี่ยมมุมฉาก
- ใช้เครื่องตัดอัตโนมัติที่สามารถแบ่งความกว้างหน้า Coil เหล็กได้ และตัดแต่ละครั้งเต็มหน้า
- ชิ้นงานเหล็กแผ่น 4 ฟุต ´ 8 ฟุต
- ชิ้นงานที่ต้องการตัดเป็นรูปสี่เหลี่ยมมุมฉาก
- ทำการตัดแต่ละครั้งตลอดความกว้าง หรือตลอดความยาวของแผ่นเหล็ก
ตัวอย่างการประยุกต์ใช้งาน

========================================================